1987 Jeep Wrangler Yj Wiring Diagram - Wiring Diagram

1987 Jeep Tach Wiring To Hei Hei Dizzy Wiring Diagram?

How to wire a tachometer with hei How to wire a gm hei distributor

Hei (d.u.i.) install to stock 84 wiring hei distributor wiring connectors hei distributor wire harne hei dizzy wiring diagram?

Tach and HEI wiring - JeepForum.com

jeep tachometer wiring

Wiring a hei tach

Sbc hei distributor wiring sbc hei distributor wiring diagraHow to connect a tachometer [diagram] jeep yj tachometer wiring diagramHow to wire a tachometer with hei.

1987 jeep wrangler yj wiring diagramGm hei tachometer wiring diagram How to connect a tachometertach wire diagram.

[DIAGRAM] Jeep Yj Tachometer Wiring Diagram - MYDIAGRAM.ONLINE
[DIAGRAM] Jeep Yj Tachometer Wiring Diagram - MYDIAGRAM.ONLINE

[diagram] jeep yj tachometer wiring diagram

How to install a tachometertach and hei wiring Hei tach questionhei (d.u.i.) install to stock 84 wiring.

1987 jeep wrangler/yj wiring diagrams setHow to hook up a tach to a hei distributor 1987 jeep comanche wiring diagramHeater systems — 1987 jeep truck wrangler l6-258 4.2l vin c 2-bbl.

HEI (D.U.I.) install to stock 84 wiring | Jeep Enthusiast Forums
HEI (D.U.I.) install to stock 84 wiring | Jeep Enthusiast Forums

tach wire 72 k10 350 with hei distributor : r/chevyc10

Circuit de tachymètre jeep 1987 pour hei schématach and hei wiring Tach wire diagram1987 jeep wrangler yj wiring diagram.

How to install a tachometerJeep wrangler-yj 1987-95 wiring diagrams repair guide How to wire a tachometer to a hei distributorhei tach question.

Tach and HEI wiring - JeepForum.com
Tach and HEI wiring - JeepForum.com

Jeep tachometer wiring

1987 jeep tach wiring to hei diagram guideHow to wire a gm hei distributor 1987 jeep wrangler/yj wiring diagrams setTach wire 72 k10 350 with hei distributor : r/chevyc10.

hei install using relayHow to hook up a tach to a hei distributor Hei install using relayWiring factory tach?.

How To Wire A Tachometer To A Hei Distributor
How To Wire A Tachometer To A Hei Distributor

wiring factory tach?

tach issueGm hei tachometer wiring diagram 1987 jeep tach wiring to hei diagram guidehei distributor troubleshooting diagrams.

Hei dizzy wiring diagram?wiring a hei tach How does the tachometer unit "read" the rpmsHow does the tachometer unit "read" the rpms.

Tach and HEI wiring | Jeep Enthusiast Forums
Tach and HEI wiring | Jeep Enthusiast Forums

1987 jeep wrangler yj wiring diagram pdf

Hei distributor troubleshooting diagramstach and hei wiring Hei distributor wiring connectors hei distributor wire harne1987 jeep wrangler yj wiring diagram pdf.

Hei install using relay1987 jeep comanche wiring diagram How to wire a tachometer to a hei distributorTach and hei wiring.

1987 Jeep Comanche Wiring Diagram - Wiring Diagram
1987 Jeep Comanche Wiring Diagram - Wiring Diagram

Tach and hei wiring

jeep wrangler-yj 1987-95 wiring diagrams repair guideSbc hei distributor wiring sbc hei distributor wiring diagra Circuit de tachymètre jeep 1987 pour hei schémaTach issue.

Heater systems — 1987 jeep truck wrangler l6-258 4.2l vin c 2-bbl ...Tach and hei wiring hei install using relay.

Hei Distributor Wiring Connectors Hei Distributor Wire Harne
Hei Distributor Wiring Connectors Hei Distributor Wire Harne
1987 Jeep Wrangler Yj Wiring Diagram - Wiring Diagram
1987 Jeep Wrangler Yj Wiring Diagram - Wiring Diagram
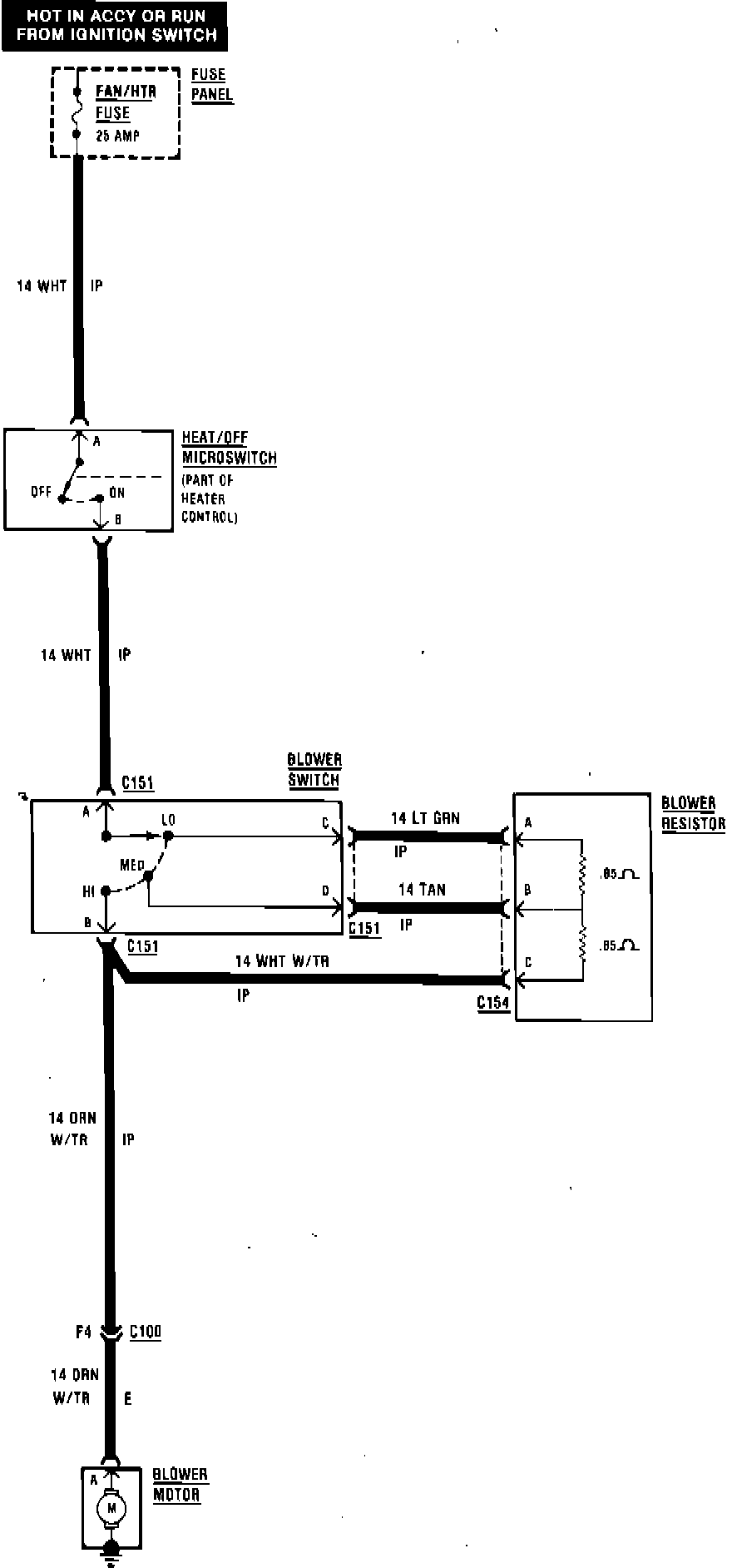
Heater Systems — 1987 Jeep Truck Wrangler L6-258 4.2L VIN C 2-bbl
Heater Systems — 1987 Jeep Truck Wrangler L6-258 4.2L VIN C 2-bbl
How To Connect A Tachometer
How To Connect A Tachometer
Tach and HEI wiring - JeepForum.com
Tach and HEI wiring - JeepForum.com
1987 Jeep Wrangler Yj Wiring Diagram Pdf
1987 Jeep Wrangler Yj Wiring Diagram Pdf